Huoneistokuvaus
Holiday Club Leville rakennetaan uusia loma-asuntoja, uuden kohteen rakennustyöt alkavat huhtikuussa 2026! Valittavana on kahdenlaisia lomahuoneistoja: 50 m²:n huoneisto, joka majoittaa kuusi henkilöä, sekä 68,5 m²:n perhehuoneisto, joka tarjoaa tilat kahdeksalle. Kummassakin huoneistossa on avokeittiö, sauna ja tilava parveke. Leville valmistuu myös esteettömiä huoneita, joihin mahtuu majoittumaan neljä henkeä.
Hintaan sisältyy:
Täysin kalustettu ja varusteltu: keittiö, sauna ja kaikki muu valmiina lomaasi
Helppoa lomailua: siivous, pyyhkeet ja vuodevaatteet sisältyvät aina hintaan
Lähellä Levin palveluita: Levin monipuolinen tarjonta lähelläsi
Majoitusalennukset: hotelliyöpymiset -50 % ja loma-asuntojen varaus -25 %
Ravintola- ja kylpyläedut: ravintoloissa -10 % ja kylpylöissä sekä monissa aktiviteeteissa -15 % etu
Edulliset lisäviikot: omistajien lisäviikot äkkilähtöhintaan
Vaivaton vaihtoehto: me huolehdimme omistuksestasi, jotta sinä voit keskittyä lomailuun
Käytä kuten haluat: voit halutessasi vuokrata viikkosi edelleen tai vaihtaa ajankohtaa
Haluamasi palvelut lomalle: käytä resorttien palveluita edullisesti, omien tarpeidesi mukaan
Kuva on suuntaa antava, matieraalivalinnat tarkentuvat.
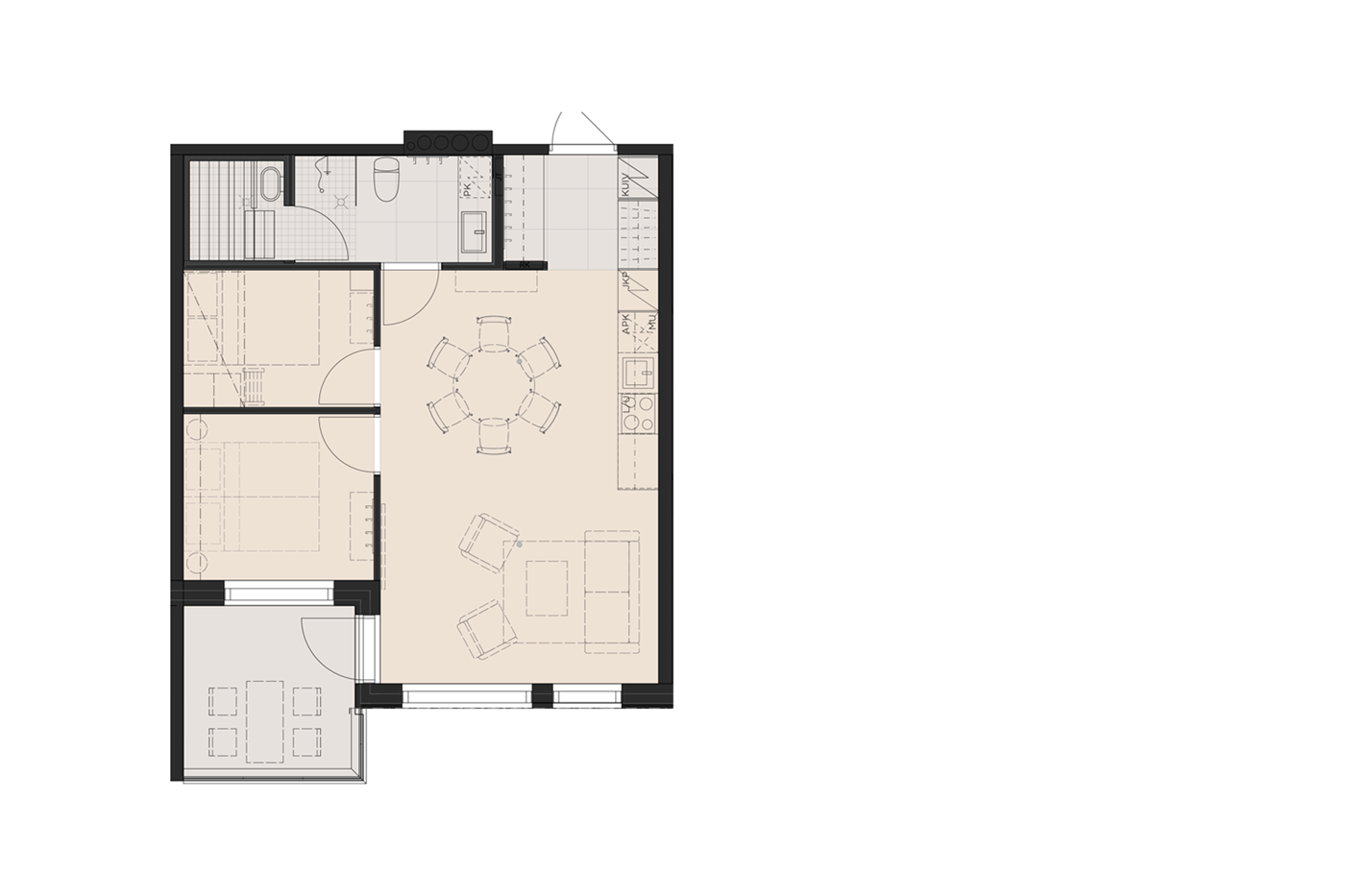
Lomahuoneistojen pohjaratkaisut on suunniteltu joustaviksi ja toimiviksi. Ne mukautuvat erilaisiin elämäntilanteisiin ja lomailutapoihin.
Lomahuoneistojen koosta riippuen majoittumaan mahtuu jopa 6–8 henkilöä lisävuoteet huomioiden.
Esteettömiä huoneistoja on kaksi kappaletta, ja ne ovat kooltaan 50 m2 ja 51,5 m2. Esteettömissä huoneistoissa on yksi makuuhuone, ja niihin mahtuu majoittumaan neljä henkilöä.
Lomahuoneistoihin voit tutustua tarkemmin tilaamalla esitteen
Huoneistojen sisustuksesta on kaksi variaatiota: tummempi ja tunnelmallinen Kaarna ja vaaleampi ja raikkaampi Naava. Pintamateriaalit ovat laadukkaita.
Lomahuoneistot on varusteltu arkea helpottavilla ratkaisuilla, kuten pesukoneella, kuivauskaapilla ja toimivilla säilytystiloilla. Kokonaisuus tukee rentoa ja huoletonta lomailua.
Ympäröivä luonto on tuotu osaksi lomahuoneistoja suurten ikkunoiden ja lasitetun parvekkeen kautta.
Esitteestä löydät muun muassa tarkemmat pohjakuvat, huoneistokohtaiset varustelut ja paljon muuta kiinnostavaa tietoa lomahuoneistosta.
Täyttämällä lomakkeen saat esitteen sähköpostiisi. Lisäämme sinut myös uutiskirjeemme vastaanottajaksi.
*Pakollinen kenttä
Koska,mökissä on kaikki lomailuun liittyvät asiat valmiina esim,puut, takka sauna. Aktiviteetit myös.
Olen itse tyytyväinen lomaviikkooni ja on mahdollisuus varata muitakin lomakohteita edullisempaan hintaan.Tulee arkeen hyvä tilaisuus varata muitakin lomakohteita,kuin oma lomaviikko. Näiden asioiden vuoksi voin suositella Holiday Clubin omistajuuutta muillekin !
Tietää varmasti, että kyseinen lomaviikko on joka vuosi vain itselle ja sitä ei tarvitse erikseen varata, vaan voi vain mennä tuttuun lomaosakkeeseen ja lomailu alkaa heti.
Tosi kauniisti sisustettu uusi loma-asunto. Erittäin hyvä sauna. Loma-asunnossa on todella rauhallista. Sängyt olivat tosi mukavat!
Oma 25 vuoden omistajuus on osoittautunut onnistuneeksi hankinnaksi
Tämä on ainut minua kiinnostava tapa mökkeilyyn. Huoleton loma sopii minulle. Tykkään.
